Wir verwenden Cookies, um Ihre Erfahrung zu verbessern. Um die neuen Datenschutzrichtlinien zu erfüllen, müssen wir Sie um Ihre Zustimmung für Cookies fragen. Weitere Informationen
Wilka Panik-Schaltschloss 4685
| Artikelnummer | 222558 |
|---|---|
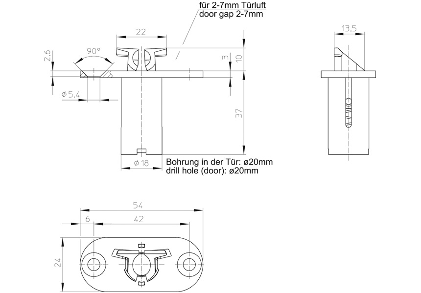
| Stulpbreite mm | 24 |
| Stulpform | Rund |
| Stulpfarbe | Verzinkt |
| Klassifizierung | EN 179 / EN 1125 |
| EAN | 4017813017947 |
| Hersteller | Wilka |
| Lieferantennummer | 4685.000001 |
Schaltschloss für die Steuerung von Anti-Panik-Gegenkästen über die Treibriegelstange, Falztreibriegelschlössern und Umlenkschlössern, Stulp 24 x 54 mm abgerundet, komplett verzinkt, Falle Stahl.
Funktion
Das Schaltschloss wird in den oberen Bereich des Standflügels eingebaut. Nach Entriegelung des Standflügels werden die Treibriegelstangen selbsttätig arretiert. Durch die Feststellung wird verhindert, dass die Treibriegelstangen während der Offenstellung des Standflügels ausfahren. Somit kann eine Beschädigung des Bodenbelages sowie eine Behinderung beim Verschließen des Standflügels ausgeschlossen werden. Der Standflügel muss erst wieder in die Verschlusslage gebracht werden, bevor durch den Schließvorgang die Falle des Schaltschlosses auf die Türzarge trifft und in das Schaltschloss gedrückt wird. Die Treibriegelstangen werden dadurch aus der Feststellung gelöst.
Funktion
Das Schaltschloss wird in den oberen Bereich des Standflügels eingebaut. Nach Entriegelung des Standflügels werden die Treibriegelstangen selbsttätig arretiert. Durch die Feststellung wird verhindert, dass die Treibriegelstangen während der Offenstellung des Standflügels ausfahren. Somit kann eine Beschädigung des Bodenbelages sowie eine Behinderung beim Verschließen des Standflügels ausgeschlossen werden. Der Standflügel muss erst wieder in die Verschlusslage gebracht werden, bevor durch den Schließvorgang die Falle des Schaltschlosses auf die Türzarge trifft und in das Schaltschloss gedrückt wird. Die Treibriegelstangen werden dadurch aus der Feststellung gelöst.



